
20kV級S(B)系列三相油浸式配電變壓器
20kV S(B) Series Three-phase Oil-immersed Distribution Transformer




注:1、對于額定容量為500kVA及以下的變壓器,表中斜線上方的負載損耗值適用于Dyn11或Yzn11聯接組,斜線下方的負載損耗值適用于Yyn0聯接組。
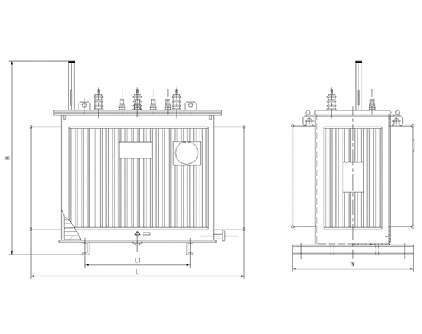
2、表中提供的外形尺寸及重量僅供參考,請以訂貨時提供的外形尺寸圖為準。
20kV級S(B)系列三相油浸式配電變壓器 2024-4-28 本文被閱讀 1728次
| 上一條:10kV級S(B)Z系列三相油浸式有載調壓配電變壓器 | 下一條:山東省民營科技企業 |

全國客服熱線:












